DZL快装锅炉系列

正锅筒快装锅炉简介:
DZL系列锅炉为链条炉排蒸汽(热水)锅炉。该炉由单锅筒水管构成炉室,它是一种水火管快装锅炉。结构简单,自然循环锅炉内阻力小,运行可靠,热效率高。造价低。
产品特点:
1、结构紧凑,体积小,整体出厂;
2、燃烧稳定,出力足,热效率高;
2、机械化程度高,安装简便,节省基建投资。
偏锅筒快装锅炉简介:
偏锅筒快装锅炉锅筒纵置(偏于炉膛一侧),自然循环、水火管、烟气三回程,第二回程布置对流水管,第三回程布置烟火管。是在正锅筒锅炉的基础上研制的新一代产品。
产品特点:
1、锅筒底部不受辐射热,不会发生锅筒底部鼓疱现象;
2、前后管板处的烟温低于500℃,管板热应力小,不会开裂;
2、采用分室送风,密封性好,配风均匀,易控制;
4、燃烧充分,炉内烟尘分离效果好,原始排尘浓度低;
5、锅炉安全可靠,热效率高,安装简便,维修方便。
主要参数及规格:

配套辅机规格:

主要参数及规格:

配套辅机规格:

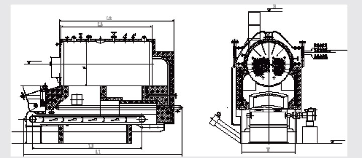
DZL偏锅筒安装图:

DZL正锅筒安装图:

锅炉主要尺寸数据:
