SZL型双锅筒纵置式水管锅炉系列

SZL型组装锅炉系列简介:
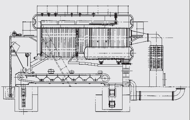
SZL型组装锅炉有上下两个纵向布置的锅筒,锅筒布置在锅炉中心线上,上锅筒的前侧与两侧水冷壁管组成炉膛辐射受热面,后部与下锅筒之间由弯曲管子组成对流受热面,整个上下锅筒水
冷壁,对流管束及炉墙护板等组成本体上部大件;下部为锅炉炉排大件。这两大件在现场进行组合,省煤器布置在本体后部,燃烧生成的高温烟气在炉膛吸收部分能量后,经冷却室进入对流受热面传热再经省煤器、除尘器、引风机将烟气送入烟囱排入大气。
SZL型系列水管锅炉现有容量:6T/H、8T/H、10T/H、15T/H20T/H、4.2MW、5.6MW、7.0MW、10.5MW、14MW数十种蒸汽和热水锅炉。可适用燃料:烟煤、烟煤(掺烧木屑)。
主要特点:
1、该锅炉锅炉本体受热面布置充裕,升压快,出力足,具有较强的超负荷能力,保温层考究,散热损失少,
水冷壁外为高铝轻质耐火砖,硅酸铝纤维毡,而一般厂家则采用侄石混凝土和珍珠岩。
2、炉排采用加强型主动炉排片,此炉排片是专为组装锅炉设计,而一般锅炉制造商则采用快装炉的普通型主动炉排片。经破坏性试验证明,加强型炉主动排片的抗拉强度是普通主动炉排片的一倍,从而确保了炉排安全可靠的运行。
3、炉排主燃区两侧采用高铝耐热球墨铸铁侧密封,而一般厂家则为灰口铸铁或普通热铸铁。
4、炉排通风采用独立密封风室双侧进风,调风装置为栅格铸铁调风门,通过伞齿轮带动齿条和活动栅格来进行调风,整个栅格全部经过金加工,操作灵活,经过冷态飘带试验验证,整个调风装置在炉排宽度方向的均匀性和长度方向的可调性都非常好,能很好地适应燃烧的需要。
5、炉排的落灰装置也采用推拉式的栅格铸铁落灰装置。
6、煤闸门采用水冷锯齿形煤闸门,不仅能疏松煤层且增加煤层燃烧的表面积,而且改善了通风体条件,经过近几年的实践证明,使用该煤闸门后,能使煤得到充分燃烧,与同规格锅炉不同煤闸门相比,可使煤的燃尽区提前500mm左右,且煤渣的含碳量大为降低。
主要参数及规格:

配套辅机规格:

主要参数及规格:

配套辅机规格:

主要参数及规格:

配套辅机规格:

双锅筒安装图:

